Für Senioren ab 60 - Service-Wohnen in Seniorenwohnanlage mit Wohnberechtigungsschein in Eidelstedt 1
Für Senioren ab 60 - Service-Wohnen in Seniorenwohnanlage mit Wohnberechtigungsschein in Eidelstedt 2
Für Senioren ab 60 - Service-Wohnen in Seniorenwohnanlage mit Wohnberechtigungsschein in Eidelstedt 3
Für Senioren ab 60 - Service-Wohnen in Seniorenwohnanlage mit Wohnberechtigungsschein in Eidelstedt 4

Für Senioren ab 60 - Service-Wohnen in Seniorenwohnanlage mit Wohnberechtigungsschein in Eidelstedt

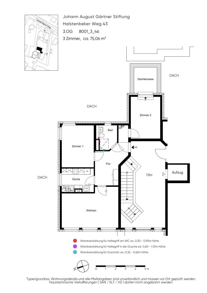
Halstenbeker Weg 43, 22523 Hamburg
Anmietung ab: 01.12.2025
Exposé herunterladenExposé herunterladen Grundriss herunterladenGrundriss herunterladen

Kosten

  • Netto-Kalt-Miete: 446,61 €
  • Betriebskosten: 278,27 €
  • Heizkosten: 150,12 €
Gesamtmiete: 875,00 €
Duschbad
Duschbad
Aufzug
Aufzug
Balkon
Balkon

Ausstattung

Die Wohnung wurde frisch modernisiert und verfügt neben einem modernen Vinylboden in Holzoptik über eine bodengleiche Dusche. Die Wohnung ist barrierearm gestaltet. Eine moderne Einbauküche rundet das Angebot ab. Zu der Wohnung gehört ein Kellerabteil.

Beschreibung

Das Objekt wurde 1983 erbaut. Im Jahr 2021 wurde es komplett modernisiert. Das Gebäude wurde barrierearm gestaltet und verfügt neben einem Fahrstuhl über einen Gemeinschaftsraum sowie eine -Terrasse, eine Gästewohnung und einen Waschkeller.

Sonstiges

„So viel Selbstständigkeit wie möglich und so viel Sicherheit wie nötig, um das Leben eigenständig zu gestalten“ ist der Grundgedanke, der hinter der Idee für diese Wohnanlage steht. Die Bewohnerinnen und Bewohner sollen möglichst lange selbst bestimmt im eigenen Wohnumfeld leben. Dieses wird durch Angebot des Service Wohnen unterstützt. Das Angebot umfasst bei Bedarf die Beratung für unterstützende Maßnahmen. Darüber hinaus werden Freizeitaktivitäten geplant, um das gemeinsame Wohnen zu gestalten. Natürlich ist eine Teilnahme an solchen Aktivitäten freiwillig.

Objektdetails

  • Zimmer: 3
  • Wohnfläche: 75 m2
  • WBS erforderlich: Ja
  • Objektnummer: 2/8001/1/46

Ausstattung

  • Duschbad:
  • Aufzug:
  • Balkon:

Energiewerte

  • Energiekennwert:
    158.00 kWh/(m²*a)
  • Hauptenergieträger: GAS
  • Befeuerung: GAS
  • Energieeffizienzklasse: E
  • Ausstelldatum: 11.01.2019

Kontakt

Ich akzeptiere die Datenschutzerklärung.